Création de cuisines 3D pour les professionnels du sur-mesure
📍Roanne et alentours
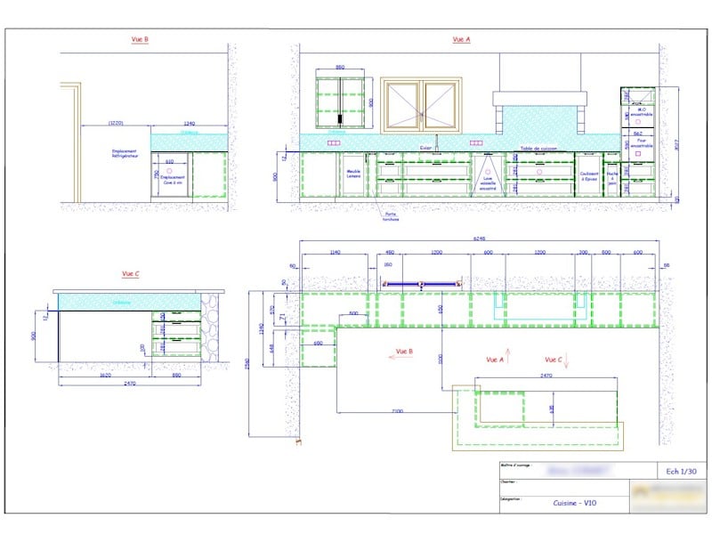
Notre savoir-faire en conception 2D et 3D pour les cuisinistes et menuisiers
Chez PROréaA, nous mettons notre expertise en dessin industriel et architectural au service des professionnels de l’aménagement intérieur.
Nous réalisons des plans 2D et 3D de cuisines sur mesure, qu’il s’agisse de projets destinés à des particuliers ou à des espaces professionnels tels que boulangeries, boucheries, bars ou restaurants.
Grâce à notre maîtrise des outils de conception, nous produisons des visuels réalistes, précis et exploitables, permettant à nos clients de présenter leurs projets avec clarté et professionnalisme.
Notre objectif est simple : vous aider à valoriser vos créations, tout en vous faisant gagner du temps sur la partie technique et visuelle de vos dossiers.
Répondre aux besoins des professionnels : gain de temps et qualité technique
Nous connaissons parfaitement les contraintes des cuisinistes, menuisiers et artisans : entre la gestion des chantiers, la coordination des fournisseurs et le suivi client, le temps consacré à la conception ou à la mise en plan est souvent limité.
C’est pourquoi nous proposons un service externalisé de conception 2D et 3D, qui vous permet de vous concentrer sur votre cœur de métier, tout en déléguant la partie dessin à une équipe fiable et réactive.
Chaque projet que nous réalisons respecte vos habitudes de travail, vos matériaux et vos contraintes techniques.
Nous vous garantissons la création de plans précis, cohérents et exploitables pour la fabrication ou la présentation client.
PROréaA est un vrai soutien pour les professionnels de Roanne et des alentous, qui souhaitent gagner en efficacité sans compromis sur la qualité.
[ TERMINÉ ]
Roanne - Pouilly-sous-Charlieu - Charlieu - Riorges - Briennon - Vougy - Nandax - Noailly - Paray-le-Monial - Mably -
Saint-Germain-Lespinasse - Perreux - Renaison - Villerest- Thizy-les-Bourgs - Amplepluis - Ambierle - Saint-Germain-Laval - Marcigny
Un partenaire de confiance pour les professionnels du bâtiment et de l’agencement
Nous accompagnons depuis plusieurs années des entreprises de menuiserie, d’agencement et de maîtrise d’œuvre dans la création de leurs plans techniques et rendus 3D.
Nos atouts :
-
une compréhension fine des besoins du terrain,
-
des échanges fluides et rapides,
-
une expertise en conception technique adaptée à tous types de projets (résidentiels et commerciaux),
-
et un engagement sur la précision et le respect des délais.
Chaque collaboration est pensée comme un partenariat, où notre rôle est de valoriser votre savoir-faire en vous apportant la rigueur technique et la clarté visuelle nécessaires pour convaincre vos clients.
Ce projet vous a plu ?
N’hésitez pas à nous consulter et nous proposer le vôtre !
[ninja_form id=2]

